Трехкомнатная квартира 91,00 м2 по ул. Ленинский проспект 35 за 50000000 руб.

Трехкомнатная квартира по ул. Ленинский проспект, 35 в Москве
Цена 50 000 000 р. (549 451 р./м2)
Подать заявку на ипотеку
Адрес Ленинский проспект, 35
Этаж 3/8
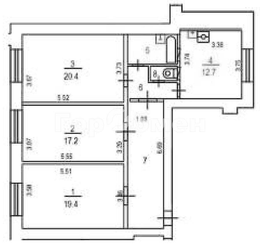
Площадь общая 91 м2, жилая 56 м2, кухни 12 м2
Кол-во комнат Трехкомнатная
Квартира в красивом фасадном сталинском доме не далеко от метро Ленинский проспект. В квартире три изолированные комнаты, просторная кухня, раздельный санузел, большой холл, все окна выходят во двор, три окна смотрят в центр Москвы и одно окно во внутренний двор (распашонка), высокие потоки 3,1 метра, внутри квартиры нет несущих стен, идеальна под перепланировку. Просторный ухоженный подъезд без посторонних запахов, видеонаблюдение, хорошие соседи, периметр двора огорожен, круглосуточная охрана, во дворе много парковочных мест, в небольшом сквере расположена своя детская и спортивная площадка, парковка во дворе контролируется автоматическими воротами. Развитая инфраструктура, метро в семи минутах пешком, рядом школа и детский сад, поликлиника, детская площадка, много сетевых магазинов, несколько больших сетевых фитнес-клубов, удобный выезд на основные транспортные магистрали города. Документы: наследство более трех лет, два взрослых собственника, полная стоимость в договоре, подходит под ипотеку, перепланировок нет, возможен оперативный выход на сделку, все документы для сделки собраны. Если вы не смогли дозвониться, оставьте сообщение на сайте, я обязательно отвечу и верну вам звонок. Сопровождение сделки для покупателя бесплатно. Оказываем помощь и консультируем по вопросам получении ипотечного кредита и одобрения ипотеки. Обеспечиваем юридическую чистоту и безопасность сделки.
Описание дома
Этажность дома 8
Объявление № 23947094
Дата подачи:
4 марта 2026 г. 4:12
Дата обновления:
4 марта 2026 г. 4:12
Просмотров 5 Хотите продать быстрее?

Продавец
Агентство недвижимости:
ГУСЕВ ПЕТР АНДРЕЕВИЧ
Показать номер телефона
Пожаловаться
Комментарии:
Добавить